
Mari Svanström
Bostadsrätt / Högmora
Fyrgränd 4
Nytt och påkostat studiohus i naturnära område!
Stilren och stram arkitektur som passar perfekt in i omgivningen, Välkommen till ett bekvämt och mycket ytsmart boende där varje kvadratmeter har tagits till vara. Studiohus i form av minivilla om 25 kvm i brf-form. Här bor du tryggt i bostadsrättsform men med känslan av en egen villa, en perfekt kombination av bekvämlighet och frihet.
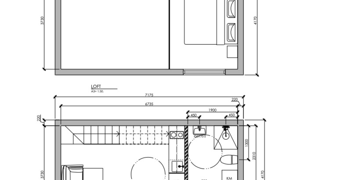
Bostaden erbjuder en genomtänkt planlösning med fina materialval och ett fantastiskt ljusinsläpp tack vare de stora fönsterpartierna. Den öppna rymden kompletteras av ett praktiskt sovloft som skapar extra utrymme och skapar ett yteffektivt boende med luftig och exklusiv känsla. Ett boende som förenar det moderna, bekväma och naturnära!
Studiohuset är under produktion och visning ordnas vid förfrågan.
Inflytt beräknas kunna ske under kvartal 2 2026. Bilderna är animerade och avvikelser kan förekomma.
Brf Fyrgränd 1 ligger längs Skogskärrsvägen och Fyrgränd i Huddinge. Studiohusen har lägenhetsnummer 13,14 och 15. Pris från 1.795.000kr
Fakta
- Förening
- Brf Fyrgränd 1
- Lägenhetsnr
- 13
- Byggår
- 2025-2026
- Boarea
- 25 m2
- Rum
- 1
- Hiss
- Nej
- Övrigt om uppvärmingen
- Frånluftsvärmepump samt vattenburen golvvärme. FT, Mekanisk från och tilluftsventilation.
TV / TELE / BREDBAND
- Internet
- TV, telefoni och data via fiber
Gemensamma utrymmen
Gemensam sophantering
Ekonomi
- Avgift
- 1 982 kr
- Andelstal
- 2.8441
- Beräknad driftskostnad enligt kalkyl för värme, hushållsel, VA, renhållning och hemförsäkring
- 527 kr/månad
- Bredband
- 350 kr/månad
- Totala driftskostnader
- 877 kr/månad
- Övrigt om driftskostnaden
- Samtliga driftskostnader är schablonberäknade utifrån den kostnadskalkyl som upprättats av föreningen. Ändringar kan komma att ske.
- Inre reparationsfond
- Nej
- Pantsättning
- Bostaden har ej kontrollerats för pantsättningar
Närområdet
Fyrgränd ligger i ett lugnt och familjevänligt område med närhet till både natur och stadens bekvämligheter. Här bor du med skogar, motionsspår och grönområden runt hörnet, vilket ger fina möjligheter till rekreation och friluftsliv året om. Samtidigt har du nära till Huddinge centrum som erbjuder ett brett utbud av butiker, restauranger, caféer och service. För barnfamiljer finns förskolor och skolor på bekvämt avstånd, liksom idrottsanläggningar och lekplatser. Området har goda kommunikationer, med buss och pendeltåg tar du dig snabbt och smidigt in till Stockholm city, samtidigt som du enkelt når de större trafiklederna för bilpendling.
Här bor du i ett lugnt och trivsamt område med närhet till natur, skolor, service och goda kommunikationer. Här finns skogar och grönområden runt hörnet samtidigt som Huddinge centrum med sitt breda utbud av butiker, restauranger och vardagsservice nås på bara några minuter. För barnfamiljen finns både förskolor och skolor på bekvämt avstånd, och för den som pendlar är resan till Stockholm smidig med både buss och pendeltåg.
Allmän information
Ovanstående uppgifter om lägenheten kommer huvudsakligen från säljaren och kontrolleras av fastighetsmäklaren endast om omständigheterna ger anledning till detta.
Samtliga areauppgifter är hämtade från bostadsrättsföreningen eller baserade på säljarens information. Dessa uppgifter kan av olika anledningar vara fel. Den köpare som tycker att arean har betydelse för köpet bör därför vidta en uppmätning.
Vill du ha hjälp att beräkna de kommande boendekostnaderna för denna bostad? Ansvarig mäklare upprättar gärna en individuell boendekalkyl.
BUDGIVNING
Vi tillämpar öppen budgivning. Det innebär att du som spekulant lämnar ditt bud till den ansvarige fastighetsmäklaren, som löpande redovisar det högsta budet till säljaren. Som utgångspunkt redovisas alla bud även till budgivare och spekulanter. Säljaren kan dock besluta att alla bud inte ska redovisas under budgivningsprocessen vilket gör att avvikelser från denna utgångspunkt kan förekomma.
Senast på tillträdesdagen lämnas budgivningslistan med namn, telefonnummer, bud och tidpunkt till köpare och säljare.
Säljaren har alltid fri prövningsrätt och behöver inte sälja till den som lagt det högsta budet. Innan köpekontraktet är undertecknat av bägge parter har inget bindande avtal träffats. Om någon spekulant lämnar ett bud efter avslutad budgivning, men innan köpekontraktet undertecknats, är det fastighetsmäklarens skyldighet att framföra detta bud till säljaren, som tar ställning till om budet ska beaktas eller inte. Läs mer om budgivning här
ENERGIDEKLARATION
En energideklaration ger information om en byggnads energianvändning och måste enligt lag göras innan en försäljning. Den visar även vilka åtgärder som kan göras för att minska byggnadens energiförbrukning. Energideklarationen är giltig i 10 år. För att energideklarationen ska vara giltig ska den vara utförd av en ackrediterad energiexpert.
Det är bostadsrättsföreningens ansvar att se till att en energideklaration upprättas. Som säljare är du skyldig att visa upp energideklarationen för en spekulant i samband med försäljningen och därefter överlämna den till en ny ägare.
KÖPARENS UNDERSÖKNINGSPLIKT
Köpare uppmanas att undersöka bostaden de vill köpa. En köpare har nämligen en långtgående undersökningsplikt. Köpare som inte har tillräckliga byggnadstekniska kunskaper bör anlita besiktningsman eller annan sakkunnig för undersökningen.
Fakta
- Pris
- 1 795 000 kr (Högstbjudande)
- Rum
- 1
- Boarea
- 25 m2
- Avgift
- 1 982 kr
- Lgh nr
- 13
- Byggår
- 2025-2026
- Område
- Högmora
- Andelstal
- 2.8441
- Typ
- Bostadsrätt
- Adress
- Fyrgränd 4
- Postnr
- 141 37
- Ort
- Huddinge
Ansvarig Mäklare












